Landratsamt Aichach-Friedberg

Erweiterung und Sanierung des Landratsamts Aichach-Friedberg

Das Landratsamt Aichach-Friedberg beabsichtigt an seinem Hauptstandort Münchener Straße 9 in Aichach, einen Erweiterungsbau zu realisieren, sowie den 1975 gebauten Bestandsbau zu sanieren. Geplant ist die Zusammenführung der Nebenstellen an einem zentralen Standort.
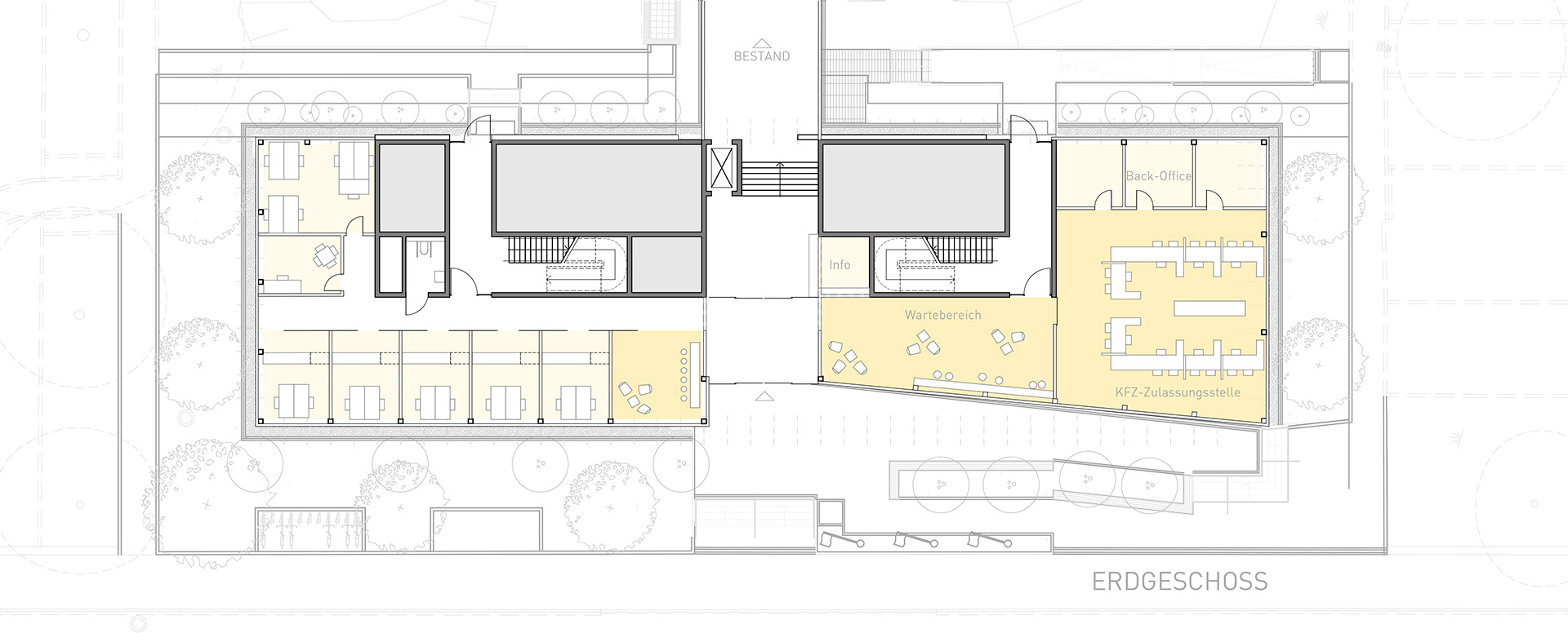
Die Maßnahme soll den erweiterten Bedarf an Raum sichern, moderne Anforderungen an eine zukunftsweisende Bürostruktur für die Verwaltung und eine langfristige Entwicklungsmöglichkeit auf dem Grundstück gewährleisten sowie die Freiflächen neu strukturieren. Der Erweiterungsbau in Holz-Hybridbauweise soll drei Vollgeschosse und ein zurückgesetztes Dachgeschoss erhalten. Neben der Büronutzung finden sich im Erdgeschoss zukünftig das Verkehrswesen und die Zulassungsstelle mit großzügigem Wartebereich und Ausstellungsflächen.

Holzhybridbauweise
Energetischer Standard: KfW 55

AuftraggeberLandratsamt Aichach-FriedbergBaukosten22 Mio. Euro (Erweiterung + Sanierung)

Der Höhenversprung vom derzeitigen Erdgeschossniveau zum Parkplatz wird genutzt, um das Erdgeschoss des Erweiterungsbaus niedriger anzuordnen und somit eine der Erdgeschoss-Nutzung angemessene Höhe zu erhalten. Ein barrierefreier Höhenausgleich findet im Übergang vom Erweiterungs- zum Bestandsbau hin statt.

Wie die meisten öffentlichen Verwaltungen nutzt das Landratsamt an seinen heutigen Standorten eine klassische Zellenbürostruktur mit Mittelflur. Der 16 m tiefe Erweiterungsbau eignet sich sehr gut zur Umsetzung neuer Bürokonzepte im Dreibundprinzip, die prospektive Möglichkeiten weg vom klassischen Büro hin zu einer modernen und offenen Arbeitswelt bieten. Mit den umlaufenden Büros und Besprechungszonen und der mittleren Service-Zone, erhält das Landratsamt nicht nur eine optimale Tageslicht- und Flächenausnutzung für möglichst viele neue Arbeitsplätze, sondern vor allem auch ein zukunftsorientiertes Raumkonzept mit räumlicher und organisatorischer Flexibilität der Flächennutzung künftiger Anforderungen.

Ähnliche Projekte

Haus für Kinder, Wangen

Portfolio

Die Stadt Wangen hat in Primisweiler einen 4- gruppigen
Kindergarten mit einer Erweiterungsoption um eine Gruppe,
ganz in Holz konstruiert. Die vier Gruppenhäuser und das
Krippenhaus funktionieren alle in sich als geschlossene Einheiten.
Sie siedeln sich um einen großen Mittelteil, der als öffentlicher
Raum einen zentraler Marktplatz darstellt.

Steinparkschulen, Freising

Portfolio

Der durch einen Grünzug im Osten und dem zukünftigen Landratsamt im Westen umschlossene Neubau der Schulen im Steinpark in Freising bildet den südlichen Abschluss eines funktional und städtebaulich neu entstehenden Quartiers. In Bezug auf die örtlichen Gegebenheiten reagiert der neue Schulbau in seiner Höhe und Lage auf die umgebende Bebauung. Das neu zu entwickelnde Ensemble zwischen Grundschule, Mittelschule und Sporthalle führt die Grundideen der Durchlässigkeit, Urbanität und differenzierte Typologien des Städtebaus weiter und ergänzt diese.