2021 – Verhandlungsverfahren mit nichtoffenem Planungswettbewerb, kein 1.Rang, Aufforderung zur Überarbeitung + Verhandlungsverfahren erfolgt – Ergebnis offen
2021 – Nichtoffener Realisierungswettbewerb nach RPW 2013 mit städtebaulichem Ideenteil für die Errichtung geförderter Wohnungen auf den Lechfeldwiesen
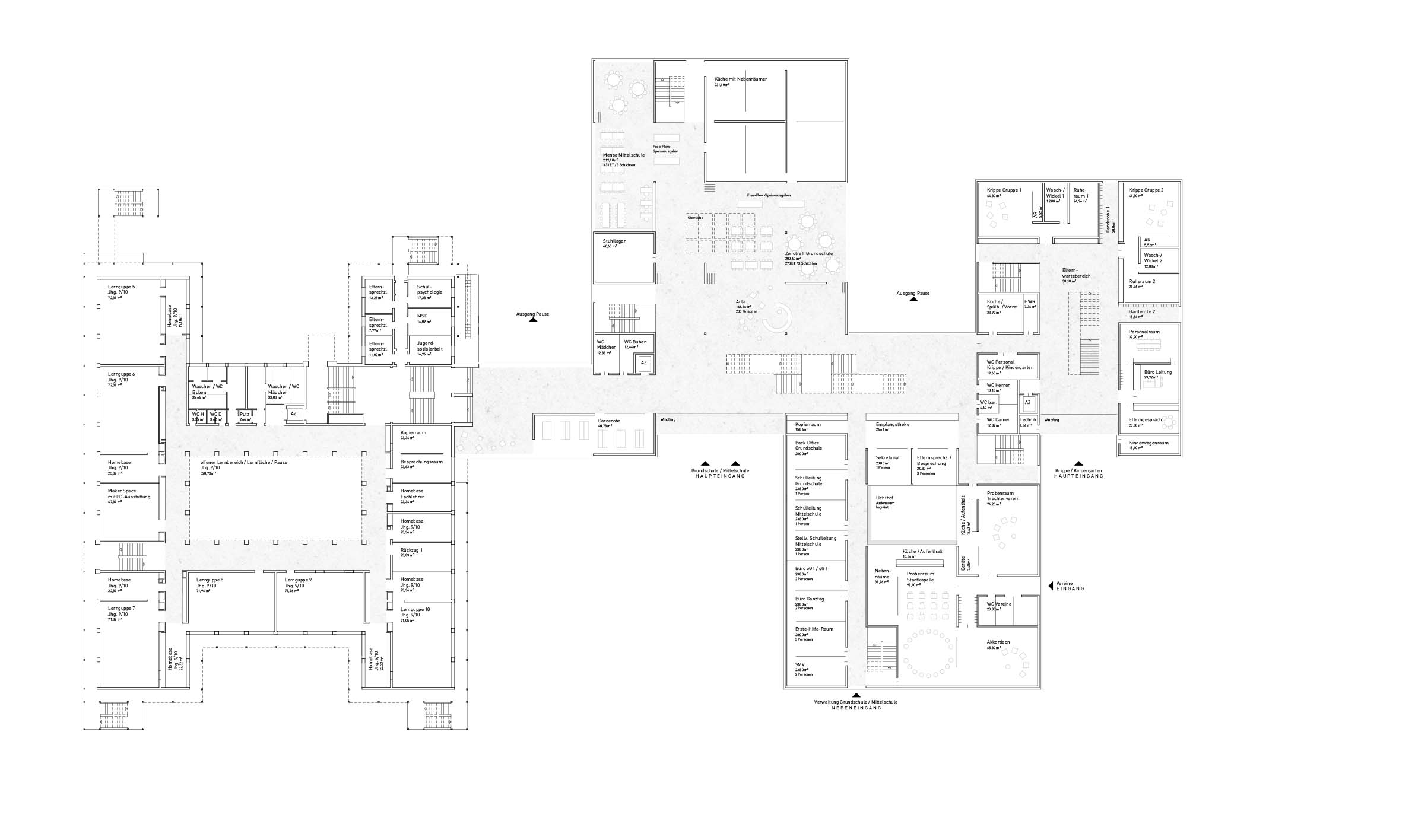
2020 – Nichtoffener, interdisziplinärer Planungswettbewerb mit vorgeschaltetem, europaweit (EWR) offenen Bewerbungsverfahren
2020 – Offenes Verfahren
2019 – Verhandlungsverfahren in Zusammenarbeit mit AGZ Zimmermann
2018 – VOF Lösungsvorschlag „Neubau Kinderhort Amberieustraße, Mering“
2018 – Beschränkter Wettbewerb Stadtbibliothek am Technikumplatz Mittweida
2018 – Realisierungswettbewerb Oberschule Hartmannplatz Chemnitz
in Zusammenarbeit mit AGZ Zimmermann
2018 – Einladungswettbewerb „Trinitatuskirche Dresden“
2018 – VOF Lösungsvorschlag „Kinderhaus Wangen“
in Zusammenarbeit mit ARGE Gerd Feuerstein Architekten
2018 – VOF Lösungsvorschlag „Wohnhaus Wormser Straße Dresden“
in Zusammenarbeit mit ARGE AGZ
2018 – Einladungswettbewerb „Landeskirchliches Archiv Dresden“
in Zusammenarbeit mit ARGE AGZ
2017 – VOF Lösungsvorschlag „Oberschule, Gymnasium Ihmelsstraße Leipzig“
in Zusammenarbeit mit ARGE AGZ
2017 – VOF Lösungsvorschlag „151. Oberschule Dresden“
in Zusammenarbeit mit ARGE AGZ
2017 – VOF Lösungsvorschlag „Neubau eines Hauses für Kinder“
2017 – VOF Löungsvorschlag „Zentrales Sächs. Proben und Bohrkernarchiv Freiberg“
in Zusammenarbeit mit ARGE AGZ
2017 – VOF Lösungsvorschlag „Schloss Augustusburg Kutschenmuseum“
in Zusammenarbeit mit ARGE AGZ
2017 – VOF Lösungsvorschlag „Oberschule Klipphausen“
in Zusammenarbeit mit ARGE AB Hauswald
2017 – VOF Verhandlungsverfahren „Erweiterung der Grundschule
Graßlfing, Olching“
2017 – VOF Verhandlungsverfahren „Neubau einer 2½ fach
Turnhalle in Grassau“
2017 – VOF Verhandlungsverfahren „Neubau eines Kindergartens
in Riedering“
2016 – VOF Lösungsvorschlag „Hochtechnologiezentrum WHZ – Zwickau“
in Zusammenarbeit mit ARGE AGZ
2016 – VOF Lösungsvorschlag „Museum Senkenberg Görlitz“
in Zusammenarbeit mit ARGE AGZ
2016 – Realisierungswettbewerb „Wiesenfesthalle Eisleben“
in Zusammenarbeit mit ARGE JBS
2016 – Gutachterverfahren „Campus Ihmelsstraße Leipzig“
in Zusammenarbeit mit ARGE AGZ
2016 – „BDA – Preis Sachsen“.
2016 – Realisierungswettbewerb „Schulzentrum Steinpark Freising“
in Zusammenarbeit mit ARGE FuR Architekten
2016 – VOF Vergabeverfahren“Neubau Haus für Kinder-
Parlerstraße 74, München-Harthof“
2016 – VOF Vergabeverfahren“Neubau Kindertagesstätte Wettersteinring, Stadt Freising“
2016 – VOF Vergabeverfahren“Neubau einer Kindertagesstätte als Typenbau oder Serienplanung in Karlsfeld“
2016 – VOF Vergabeverfahren“Neubau einer 6 gruppigen Kindertagesstätte in Wolfratshausen“
2016 – VOF Vergabeverfahren“Neubau einer Sporthalle
Edelweißkaserne Mittenwald“
2015 – VOF Lösungsvorschlag „30. Grundschule Dresden“
in Zusammenarbeit mit ARGE AGZ
2015 – VOF Lösungsvorschlag „4-zügige Grundschule Grafinger Straße München“
2015 – Realisierungswettbewerb „Neugestaltung Flussfreibad und der Wörlitzinsel Oettingen“
in Zusammenarbeit mit ARGE JBS
2015 – „Sächs. Staatspreis für Baukultur“.
Im Jahr 2015 nahmen wir am VOF-Lösungsvorschlag „Erweiterung der Lukas-
Schule an der Riegerhofstraßein München“, in Zusammenarbeit mit AG Zimmermann teil.
Im Jahr 2015 nahmen wir am VOF-Lösungsvorschlag „SHH – Ersatz-Neubau des
VFR-Sportheimes in Haag a. d. Amper“, in Zusammenarbeit mit Kottermair Rebholz Architekten teil.
Im Jahr 2014 nahmen wir, in Zusammenarbeit mit ARGE AGZ, am VOF-Lösungsvorschlag „Forstliche Ausbildungstätte Bad Reiboldgrün“ teil.
Im Jahr 2014 nahmen wir, in Zusammenarbeit mit ARGE AGZ, am VOF-Lösungsvorschlag „Gymnasium Dresden Süd-West“ teil.
Im Jahr 2014 nahmen wir am VOF-Lösungsvorschlag „Neubau Schülerhort Gilching“ teil.
Im Jahr 2014 nahmen wir, in Zusammenarbeit mit ARGE AGZ, am Realisierungswettbewerb „Lernförderschule Freital“ teil.
Im Jahr 2014 nahmen wir, in Zusammenarbeit mit ARGE Stol, am Wettbewerb „Gymnasium und Oberschule Dresden-Tolkewitz“ teil.
Im jahr 2014 nahmen wir, in Zusammenarbeit mit ARGE AGZ, am Wettbewerb „Gymnasium Karl-Heine-Straße Leipzig – Zuschlag“ teil.
Im Jahr 2013 nahmen wir, in Zusammenarbeit mit ARGE AB Hauswald, am VOF-Lösungsvorschlag „82. OS mit Neubau und Sanierung Sporthallen Dresden“ teil.
Im Jahr 2013 nahmen wir, in Zusammenarbeit mit ARGE AGZ, am Realisierungswettbewerb „Sport-Mittelschule Leipzig“ teil.
Im Jahr 2012 nahmen wir am Einladungswettbewerb „Gemeindezentrum Radebeul“ teil.
Im Jahr 2012 nahmen wir, in Zusammenarbeit mit den ARGE Rieger Architekten, am Realisierungswettbewerb „Gesamtschule Lippstadt“ teil.
Im Jahr 2012 nahmen wir am VOF-Lösungsvorschlag „Umbau Schützenhaus Hohenstein-Er.“ teil.
Im Jahr 2012 nahmen wir, in Zusammenarbeit mit ARGE AGZ, am VOF-Lösungsvorschlag „147. Grundschule mit Sanierung Sporthalle Dresden“ teil.
Im Jahr 2012 nahmen wir, in Zusammenarbeit mit ARGE Teamcoo, am VOF-Lösungsvorschlag „Krankenhaus Rodewisch“ teil.
Im Jahr 2012 nahmen wir, in Zusammenarbeit mit ARGE AGZ, am VOF-Lösungsvorschlag „146. Grundschule mit Neubau Sporthalle Dresden“ teil.
Im Jahr 2012 nahmen wir am Realisierungswettbewerb „Friedenskirche Aue“ teil.
Im Jahr 2012 nahmen wir, in Zusammenarbeit mit ARGE AGZ, am Realisierungswettbewerb „TU Bibliothek Chemnitz“ teil.
Im Jahr 2012 nahmen wir, in Zusammenarbeit mit ARGE AGZ, am Realisierungswettbewerb „Telemann Gymnasium Leipzig“ teil.
2011 – Neubau Kita Crimmitschau
Im Jahr 2011 nahmen wir am VOF-Lösungsvorschlag „Neubau Kögelhaus Taufkirchen“ teil.
Im Jahr 2011 nahmen wir am VOF-Lösungsvorschlag „Stadtteilzentrum Milbertshofen“ teil.
Im Jahr 2010 nahmen wir am Realisierungswettbewerb „Kita Nebelschütz“ teil.
Im Jahr 2010 nahmen wir am VOF-Lösungsvorschlag „Krippenhaus Vaterstetten – Zertifiziertes Passivhaus“ teil.
Im Jahr 2010 nahmen wir am Sächsischen Landeswettbewerb „Neubau Kita-Gebäude Wüstenbrand“ teil.
Im Jahr 2009 nahmen wir am VOF-Lösungsvorschlag „Neubau Mittelschule Hohenstein-Er.“ teil.
Im Jahr 2009 nahmen wir am Realisierungswettbewerb „Kindergarten Nebelschütz“ teil.
Im Jahr 2009 nahmen wir am Realisierungswettbewerb „Passivhaus-Schule Radebeul“ teil.
Im Jahr 2009 nahmen wir am Realisierungswettbewerb „Mittelschule Pirna“ teil.
Im Jahr 2008 nahmen wir am Realisierungswettbewerb „Neubau Passivhausschule Dresden-Loschwitz“ teil.
Im Jahr 2008 nahmen wir am Realisierungswettbewerb „Schloss Albrechtsburg Meissen“ teil.
Im Jahr 2007 nahmen wir am Realisierungswettbewerb „Wohn-und Geschäftshaus Dresden“ teil.
Im Jahr 2006 nahmen wir am Sächsischen Landeswettbewerb „Pegelbauprogramm“ teil.
Im Jahr 2005 nahmen wir, in Zusammenarbeit mit den ARGE Dähne-Architekten, am Sächsischen Holzbaupreis „Dresdner Ruderclub“ teil.
























