Grundschule an der Haager Straße 18 – Werksviertel München

Der Schulneubau liegt im industriell geprägten Bereich des Ostbahnhofs mit seinen großvolumigen Versorgungstypologien. Er reagiert auf diesen Kontext mit einer Interpretation von Massigkeit und deren Auflösung. Gleichzeitig vermittelt er durch seine vertikale und horizontale Staffelung zwischen öffentlichen, halböffentlichen und schulinternen Bereichen.

AuftraggeberLH München, Referat für Bildung und SportBaujahrfertiggestellt 2021

Bauaufgabe und Situationsentscheid

Die Bauaufgabe bestand in der Neuplanung einer vierzügigen Grundschule mit integrierter zweifach Sporthalle sowie deren kompakte Einordnung in das neu entstehende Werksviertel rund um den Ostbahnhof. Die Gesamtanlage in unmittelbarer Nachbarschaft zum zukünftigen musikalischen Herzstück Münchens – dem neuen Konzerthaus – wird zum neuen Zentrum des wachsenden Stadtviertels.

Leitidee

Das Entwurfskonzept beruhte auf dem Wunsch, eine Grundschule zu konzipieren, die sich in einem neu entstehenden Stadtviertel zu einem Ort des aktiven, emotionalen sowie sozialen Lernens für den Einzelnen und für die Gruppe entwickelt und gleichzeitig einen Ort der Ruhe und Entspannung darstellt. Die Grundschule als kompakte Struktur mit integrierter zweifach Sporthalle nicht nur entsprechend den aktuellen technischen, energetischen und ökologischen Standards zu planen, sondern auch an zeitgemäße pädagogische Anforderungen anzupassen, stellte eine besondere Herausforderung dar. Als verbindendes Element im entstehenden Werksviertel, in dem es die unterschiedlichsten architektonischen Typologien geben wird, soll die Grundschule als Schnittstelle zwischen internen und außerschulischen Nutzungen funktionieren. Ihr Erscheinungsbild soll in seiner Ausstrahlung als modern, kindgerecht und individuell wahrgenommen werden und parallel dem übergeordneten Ziel des „Werkscharakters“ entsprechen.

Einordnung in die städtebauliche Umgebung

Das Schulgrundstück befindet sich im Stadtteil Berg am Laim auf der östlichen Seite des Ostbahnhofs. Ein zentraler Park bildet das Herzstück des neuen Werksviertels, von dort aus vernetzen sich Erschließungsbänder mit der unmittelbaren Umgebung und dem umgebenden Schulquartier.

Die viergeschossige Grundschule liegt parallel zur Haager Straße und ordnet sich als ein zeitgemäß gestalteter Einzelbaukörper in die vorhandene sowie zukünftige städtebauliche Struktur ein. Ziel der Konzeption war es, durch die Positionierung der Baumasse auf dem innerhalb des Schulquartiers vorgegebenen Baufeld die Gebäudekubatur der Schule als Schutz zur etwas stärker befahrenen Haager Straße gegenüber dem beruhigten Hofbereich mit Grünzonen, Freiflächen und Freisportanlagen zu verorten.

Es entstand ein mit der Nachbarschaft im Einklang, in sich geschlossenes Schulquartier, das Freiräume unterschiedlicher Nutzung, Atmosphäre und Gestalt umfasst. Dazu gehören die großzügige, zurückgesetzte Eingangssituation an der Kreuzung Haager Straße und August-Everding-Straße als sicherer, barrierefreier Platz für das Kommen und Gehen der Schulkinder, der geschützte Baumbestand als Übergang zum gegliederten Pausenhof mit Aktionsbereichen, Allwetterplatz und Ruhezonen sowie die große Sportfreifläche mit angrenzender 50-Meter-Laufbahn, welche sich im Süden zum Piusanger orientiert.

Eine wichtige Intention des Entwurfes war es, eine möglichst flächeneffiziente Organisation des Baukörpers der Schule und der angrenzenden Wohnbebauungen innerhalb der städtebaulichen Entwicklung zu erreichen. Des Weiteren war die klare Strukturierung der Nutzungen unter Berücksichtigung des erforderlichen Flächenbedarfs von großer Bedeutung.

Typologie/ Erschließung/ Funktionalität

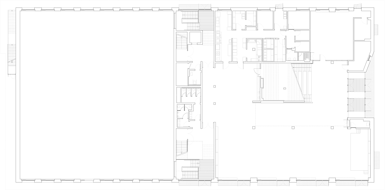
Ein zurückgesetzter Vorplatz an der Kreuzung zwischen Haager Straße und August-Everding-Straße bildet das Entree der Schule, insbesondere für die aus Richtung Berg am Laim und den angrenzenden Stadtvierteln kommenden Schüler/innen. Als Pendant entstand ein zur Haager Straße ausgerichteter barrierefreier Zugang. Hier besteht die Möglichkeit, bei außerschulischen Nutzungen der integrierten Sporthalle den Baukörper gesondert zu erschließen. Der zum Schulhof orientierte Gebäudezu-und Ausgang wird als Pausen- bzw. Sportausgang ausschließlich von den Schulkindern und Lehrern verwendet. Ein großzügiger Windfang- und Eingangsbereich leitet fließend vom Außen- in den Innenbereich über. Im Erdgeschoss sind Eingangsbereich, Speise- und Musiksaal als teilweise zusammenschaltbare Raumlandschaft inszeniert, die multifunktional nutzbar ist. Für interne Veranstaltungen lassen sich mittels flexibler Wände unterschiedliche Raumgrößen und -zuschnitte herstellen. Zusätzlich verbindet eine offene Treppe mit Sitzgelegenheiten über ein Atrium vertikal die Raumlandschaft mit dem 1. Obergeschoss. Über das Oberlicht des Atriums gelangt Tageslicht in das Gebäudeinnere.

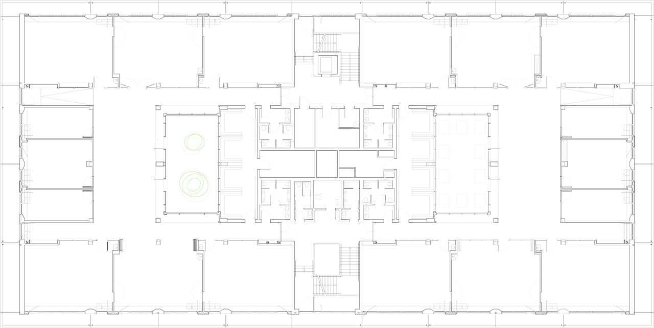
Die viergeschossige, rechteckige Grundform des Entwurfs wird strukturiert durch den zentralen Gebäudekern, zwei Lichthöfe, sowie die integrierte Sporthalle.

Grundriss Erdgeschoss

Grundriss Regelgeschoss (2./3.OG)

Schnitt

Gestaltung und Materialität der Fassaden

Die Fassade spiegelt die unterschiedlichen Gebäudezonen wieder. Das Erdgeschoss wird als massiv anmutendes Sockelgeschoss ausgeführt. Die Obergeschosse stehen im Kontrast dazu mit ihrer leichten, offenen Gestaltung. Als gebäudeumschließendes Element fallen die umlaufenden Fluchtbalkone ins Auge. Diese sind aus brandschutztechnischer Sicht erforderlich und strukturieren das Gebäude horizontal.

Die Fassadenansichten wurden in ihrer Materialität und Struktur aus der inneren Abhängigkeit entwickelt. Gleichzeitig wurde großer Wert darauf gelegt, über die Fassaden einen „werksähnlichen“ Charakter zu erzeugen. Die Erdgeschossfassade wird aus einem beigefarbenen, geschlämmten Ziegel als Verblendmauerwerk ausgeführt. Die Farbe der hinterlüfteten Faserzementfassade der Obergeschosse erhielt einen Ton aus der Farbfamilie des gewählten Ziegels. Die Fenster bilden ein regelmäßiges, ruhiges Raster und gliedern die Fassade. Belichtungstechnisch optimal werden die Fenster weitestgehend sturzfrei bis an die Geschossdecke geführt und nehmen nahezu die gesamten Raumbreiten ein. Damit lassen sich die erforderlichen Mindestbelichtungen für Klassenräume gut nachweisen. Die Fassaden der integrierten Sporthalle orientieren sich in ihrer Gesamtheit am Erscheinungsbild der Schule.

Zeichnungen © Architekturbüro Raum und Bau

Fotos © Architekturbüro Raum und Bau und © BECKERLACOUR

Ähnliche Projekte

Haus für Kinder, Wangen

Portfolio

Die Stadt Wangen hat in Primisweiler einen 4- gruppigen
Kindergarten mit einer Erweiterungsoption um eine Gruppe,
ganz in Holz konstruiert. Die vier Gruppenhäuser und das
Krippenhaus funktionieren alle in sich als geschlossene Einheiten.
Sie siedeln sich um einen großen Mittelteil, der als öffentlicher
Raum einen zentraler Marktplatz darstellt.

Campus Sachsenring Oberschule, Hohenstein-Ernstthal

Portfolio

In der Stadt Hohenstein-Ernstthal wurde, am traditionellen Schulstandort ein Ersatzneubau für die dort bereits bestehende 2-zügige Mittelschule errichtet. Zusätzlich wurde das teilsanierte historische Schulgebäude aus dem Jahr 1903 mit in die Planung eingebunden.
Ausgezeichnet mit dem BDA-Preis Sachsen 2016